![]() |
Would you like to purchase this plan? All Home plan pricing between $750.00 to $4,995.00. Submit request below.
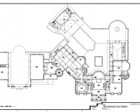
This Renaissance Italian Villa was designed by PAIhomes. The design takes inspiration from the Palladio's Villas of Italy. The home has cut limestone veneer, limestone columns and trim. The roof is a red Mediterranean style clay tile. The home features two garages with space for eight cars, a pool house, private enclosed motor court, and circular towers for the limestone stairs.
For more information please email at the PAIContact page.

